ELLEN PDS-B-ZK Décor/Confort, auto-adhésif KF blanc DIY Progr., L 1000 mm
133,99 €
TTC
Cet article n'est pas disponible actuellement.
Fabricants et informations
Elton
Code art. : 96049830
Réf. fabricant :
0500132
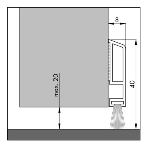
- Joint de bas de porte à coller sur la porte. Voir PDS-B, mais en version autocollante et avec embouts
- Grâce à la forme spéciale du profil, il est également possible de combler des espaces plus larges



